Alguns Projetos Desenvolvidos
Verifição, otimização de custo e adequação dos projetos estruturais do empreendimento Residencial Florença composto de 286 apartamentos, totalizando 38.200 m² .


Constepav Construtora e Empreendimento




Projetos de fundações, estruturas, e supervisão técnica de execução das obras, totalizando 3.600 m² .
ConstruMart Construtora
Cotia SP
Verificação e adequação dos projetos de fundação e da estrutura do muro de contenção em trecho da avenida Paulo L. Quantim (área: 640 m²)
Prefeitura Municipa de Itapira
Itapira SP


Projetos de fundação e estruturas de concreto armado do empreendimento Residencial Zaire, composto de 92 apartamentos, totalizando 18.816 m² .
Constepav Construtora e Empreendimento
Projetos de fundação e estruturas de concreto armado do empreendimento Residencial Albania, composto de 96 apartamentos, totalizando 23.040 m² .
Constepav Construtora e Empreendimento


Cotia SP
Cotia SP
Projeto de fundação da Escola Izaura Silva Vieira e supervisão técnica de execução da fundação - Área: 2996 m²
Prefeitura Municipa de Itapira
Itapira SP


Cotia SP
Projetos de fundação e metálica - pavilhão do Centro de Convivência do Idoso, e supervisão técnica de execução dos projetos - Área: 420 m²




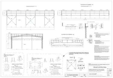
Projetos de recuperação da cobertura e dos apoios da quadra poliesportiva da Escola Angelo Angelino, e supervisão técnica de execução dos projetos - Área: 640 m²
Prefeitura Municipal de Vargem G. Paulista
Prefeitura Municipal de Vargem G. Paulista
Projetos de fundação e estruturas - casa de campo, e supervisão técnica de execução dos projetos - Área: 552 m²
Ozorio Hercilio da Silva


Trindade GO


Projeto de cobertura metálica da quadra poliesportiva rua Panamá, e supervisão técnica de execução dos projetos - Área: 457 m²
Prefeitura Municipal de Vargem G. Paulista


Projetos de fundação e metálicas - extensão da loja Mundo das Utilidades - Área: 580 m²


Projetos de fundação e estruturas - casas unfamiliares - Área: 715 m²
Arquiteto Manix Araujo
Trindade GO
Geraldo Tranaglia Filho
Vargem Grande Paulista SP
Vargem Grande Paulista SP
Vargem Grande Paulista SP
Vargem Grande Paulista SP



